1 / 36



































| Reference | CDSVA-AL025 | Price | 2.450.000€ |
| Type | Chalet/Villa | Bedrooms | 3 |
| Province | Alicante | Bathrooms | 2 |
| City | Cumbre del Sol | Private pool | Infinity |
| Area | Lirios | ||
| Orientation | Sureste | Air conditioning | Split |
| Built area | 573.00 m² | Heating | Suelo radiante |
| Plot | 1149.00 m² | Views | Al mar |
| Terrace | 226.00 m² | Kitchen | Con isla |
| Useful area | 0.00 m² | ||
| Floors | 3 |
Distances
Modern luxury villa with spectacular sea views in the Lirios residential area, Cumbre del Sol
Discover this luxury villa for sale in Cumbre del Sol, an exclusive property situated in the Lirios residential area, within the prestigious Cumbre del Sol development, between Jávea and Moraira, in the municipality of Benitachell. A home designed for those seeking privacy, contemporary design, spaciousness and breathtaking views of the Mediterranean Sea in one of the most sought-after locations on the Northern Costa Blanca.
With modern architecture, clean lines and a careful selection of materials, this villa offers a perfect blend of elegance, functionality and comfort. All this on a spacious, well-oriented plot that allows you to make the most of natural light, the tranquillity of the surroundings and the Mediterranean lifestyle.
Key features of the villa
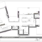
This exclusive property has a total built area of 573 m², distributed as follows:
- 298 m² of living space
- 205 m² of open terrace
- 22 m² of covered terrace
- 49 m² of open garage
- 1,149 m² plot
The villa has 3 bedrooms and 4 bathrooms, with a layout designed to offer comfort, privacy and an excellent connection between the indoor and outdoor spaces.
A modern-design villa open to the landscape
From the very first moment, this home exudes exclusivity. Its large windows allow natural light to flood into every room whilst framing the unobstructed views of the sea and the Mediterranean landscape. The result is a bright, serene and elegant atmosphere throughout the day.
The main living room blends seamlessly with the outdoor area, creating an ideal space both for daily life and for enjoying gatherings with family or friends. The architecture of this villa has been designed to make the most of the surroundings, seamlessly blending the interior and exterior.
Spacious terraces and a private pool to enjoy the Costa Blanca
One of the major attractions of this property is its spectacular outdoor area. The private pool, surrounded by a spacious terrace, is the perfect spot to relax, sunbathe or enjoy evenings al fresco with truly stunning views.
Outdoor spaces designed to be enjoyed all year round
The various terraces, both open-air and covered, offer a variety of settings for every moment of the day. From breakfasts overlooking the sea to dinners at sunset, this villa invites you to enjoy the exceptional climate of Benitachell, Jávea, Moraira and the entire Northern Costa Blanca.
Furthermore, the gardens surrounding the property have been designed to blend in with the natural beauty of the surroundings and enhance the sense of privacy and well-being.
Bedrooms that invite you to rest
The bedrooms in this modern villa with sea views have been designed as true havens of tranquillity. They are spacious, light-filled spaces with a careful connection to the outdoors, allowing you to enjoy private terraces and unobstructed views of the sea or the natural surroundings.
Master bedroom with en-suite bathroom
The master bedroom stands out for its spaciousness, elegance and level of comfort. It features an en-suite bathroom and high-quality finishes that reinforce the exclusive character of this property.
Prime location in Cumbre del Sol
This villa for sale in Residencial Lirios is situated in one of the most sought-after areas of Cumbre del Sol, a residential development renowned for its natural surroundings, privacy and stunning views of the Mediterranean. The location offers easy access to beautiful coves, quality amenities and a wide range of leisure, dining and outdoor activities.
Living here means enjoying an exclusive property in a strategic location between Moraira and Jávea, with excellent transport links and perfect both as a primary residence and for those seeking a high-end second home or a property investment on the Costa Blanca.
A unique opportunity to buy a luxury villa in Benitachell
If you are looking for a luxury villa with a private pool, spacious terraces, contemporary architecture and spectacular sea views, this property has everything it takes to be an exceptional choice.
Its location in Residencial Lirios, the size of the plot, the quality of its spaces and its modern design make this property a highly attractive opportunity within the Cumbre del Sol property market.
Contact me for more information or to arrange a viewing
I’d be delighted to help you find out if this villa is what you’re looking for. If you’d like more information, floor plans, further details or to arrange a viewing, please get in touch with me. I’ll guide you through the entire process with a personal touch, transparency and total commitment.
Overview of the Lirios residential area in Cumbre del Sol
The Lirios residential area is one of the most exclusive areas of Cumbre del Sol, in Benitachell, and stands out for its peaceful surroundings, its detached villas and its panoramic sea views. It comprises 235 plots ranging from 750 m² to 1,200 m², and most face east and south-east, providing excellent natural light and beautiful sunrises.
Surroundings, amenities and nearby connections
The Lirios residential area is situated between the Kalmias, Magnolias and Jazmines zones, very close to the southern entrance of the development, making it easy to access amenities and points of interest. Nearby are highly regarded spots such as Dreamsea Mediterranean Camp, Moraig Beach, Cala de los Tiestos and Cala Llebeig. It also offers easy access to the Adelfas Shopping Centre, restaurants, a pharmacy, a sports centre, a riding school, the Lady Elizabeth International School and supermarkets, and is just a few minutes’ drive from the centre of Benitachell, Moraira, Portet Beach, the Jávea Golf Course and Arenal Beach.
In short, Residencial Lirios is an excellent choice for those wishing to buy a home in an established area, offering privacy, nearby amenities and the unique charm of the Mediterranean.
⚠ NOTICE: The information contained in this listing may have changed by the owner, so we are not responsible for the accuracy of the data, please contact us for exact details of this ad.
Legal information for consumers (Art. 20 TRLGDCU):
The advertised sale price corresponds exclusively to the value of the property and includes, where applicable, real estate agency fees.
The price does not include taxes or other costs arising from the purchase, such as notary fees, land registry fees, administrative fees, or any taxes applicable to the transfer of the property, as applicable depending on the nature of the transaction. Such taxes and costs shall be borne by the buyer and calculated in accordance with the tax and legal regulations in force at the time of completion.
Where such amounts cannot be determined with exact precision at the time of publication, their existence and nature are hereby disclosed, and the agency undertakes to provide the buyer, prior to any contractual commitment, with the corresponding breakdown and calculation.
If mortgage financing is required, valuation costs, banking conditions and related expenses shall be determined by the financial institution chosen by the buyer, as well as any administrative or other costs legally payable by the buyer.
This offer is provided for informational purposes only and is subject to possible errors, price changes, availability, omissions and/or withdrawal from the market without prior notice.
Furniture, fittings and other items shown in images are not necessarily included in the offer, unless expressly stated in the purchase agreement.
Property information sheet and additional documentation are available to consumers upon request.





















































































































































































































































































